hth华体网页版登录入口_华体(中国)

hth华体网页版登录入口_华体(中国)

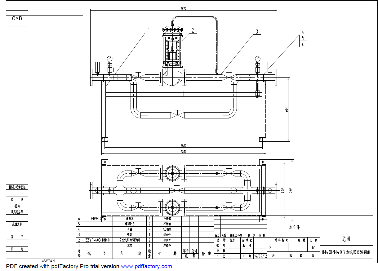
双回路减压装置

详细介绍

一.双回路减压装置主要应用范围
医用,实验室,特种,氮气,液化气等工业气体汇流排,充灌排,气瓶集装格。
各种工业气体,管路阀门,钢瓶阀门及配件,不锈钢四氟高压金属软管,低温液体阀门及波纹管。氧气,液化气等气瓶除锈机,瓶阀装卸机,回收,气密性测试等全套钢瓶检测设备。各种氧压机,空压机配件,各种二手钢瓶气体设备回收,各种型号空温式汽化器(O2,N2,Ar,CO2,LNG)等储槽系列产品,代抽真空业务。 优质溶剂型化工,电力。

二.双回路减压装置描述
ZTY型自力式调压阀组以一台(单路)或二台(双路)自力式压力调节阀为主体,配以安全阀、手动球阀、过滤器、旁路手动阀、压力表等组成一套完善的调压系统。
ZTY型 自力式调压阀组以一台(单路)或二台(双路)自力式压力调节阀为主体,配以安全阀、手动球阀、过滤器、旁路手动阀、压力表等组成一套完善的调压系统。它不需要任何外加能源,利用被调介质自身能量而实现自动调节的调压阀组。该系统最大特点,能在无电、无气的场所工作。既节约了能源,而压力设定值在运行中可随 意调整。因而它广泛应用于石油、深冷、电子、化工、电力、冶金、天然气、食品等各种燃气门站、区域调压和气体、液体的调压场合。
按照用户不同要求设计的调压阀组,以ZZYP(ZZYM)型自力式压力调节阀或是ZZYP-16BⅡ型带指挥器自力式压力调节阀等为主阀,配以其他阀门和仪表,组装成单路、双路和多路系统调压阀组,该系统还可配置不同的调节阀进行流量和温度调节。


上一篇:单回路减压装置

下一篇:已经没有了

X

Copyright©2005-2025  版权所有 hth华体网页版登录入口_华体(中国)          


hth华体网页版登录入口_华体(中国)  版权所有
Copyright©2005-2025